Sold SOLD Unique designer home in a secluded setting, with breathtaking views of the Madrid skyline. Madrid
Ref. S29
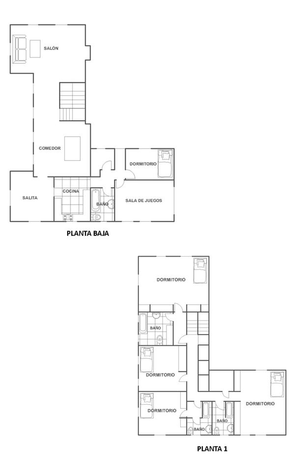
- 5 bedrooms
- 5 bathrooms
- 450 m2 built area
- 4 Ha plot size
Inspired by Norman architecture, this luxurious and functional home combines dramatic skyline views with a blissfully tranquil setting.
Built in 1966, this unique designer home was inspired by a love of classical Norman architecture, and has been sympathetically embellished by its present owners with finds from all over the world. Today, its many treasures include Valsain pine doors, modelled on a Venetian design, hand-painted scrim-backed wallpapers evoking summer in the English countryside and stunning vintage tiles.
Despite this kaleidoscope of decorative influences, it remains a bright, airy house, designed to create a synergy between inside and out. On the ground floor, the hallway, living room, dining room and porch form one long, flowing central core — a wonderful space for entertaining. Also on the ground floor is a guest bathroom, a well-appointed kitchen with generous pantry, a multi-purpose room ideal for a craft or playroom and one bedroom.
A breath-taking wooden staircase leads to the private rooms tucked away on the upper floor. Here there are four roomy bedrooms (one en-suite) and two further bathrooms. All of the bedrooms boast build-in wardrobes, large dormer windows and exceptional views.
This unique designer home stands in 4 ha of lush, well-tended gardens, with all the ingredients of a relaxing family weekend: a swimming pool, padel tennis court, changing rooms, table tennis room and covered parking for several cars. An ancillary building of 110 m2 was once the housekeeper’s residence and is in need of some refurbishment. Comprising two bedrooms, a bathroom and kitchen, this would be ideal for a self-contained guesthouse or studio/workshop.
All information contained in this web site and regarding this property is deemed reliable but not guaranteed. All properties are subject to prior sale, change or withdrawal notice. The Singular Space believes all information to be correct but assumes no legal responsibility for accuracy.
Do you want to know more about this property?
REQUEST A VIEWING OF
Unique designer home in a secluded setting, with breathtaking views of the Madrid skyline.
Ref. S29