Property image S24 Sold SOLD

Medieval Tower in the Río Purón Natural Park. burgos

Ref. S24

In an idyllic rural setting, all furniture and an independent guesthouse included.
  • 9 bedrooms
  • 9 bathrooms
  • 635 m2 built area
  • 710 m2 plot size
Brochure
A truly unique country home exemplifying a successful balance between architectural heritage and modern living, this striking tower with its distinctive mullioned window has been fully modernised to create a one-of-a-kind contemporary home in an area rich in natural and cultural treasures.

This impressive medieval tower has been thoughtfully modernised to create a stylish contemporary home in a bucolic corner of the Tobalina Valley within the Merindades area.

In a quiet corner of the Tobalina Valley, amid mountains, waterfalls and a medley of native trees, lies this peaceful property with its eye-catching tower, dating back to at least the fourteenth century.

It is located in one of the oldest towns in the valley whose cobbled streets house an harmonious rural architectural ensemble. Here, we are on the threshold of the Valderejo natural park, very close to the Purón River gorge and villages with all services such as Quintana, Frías and Ribera (Álava).

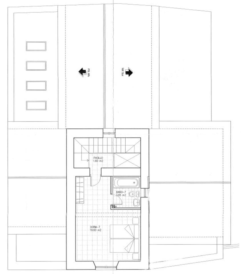
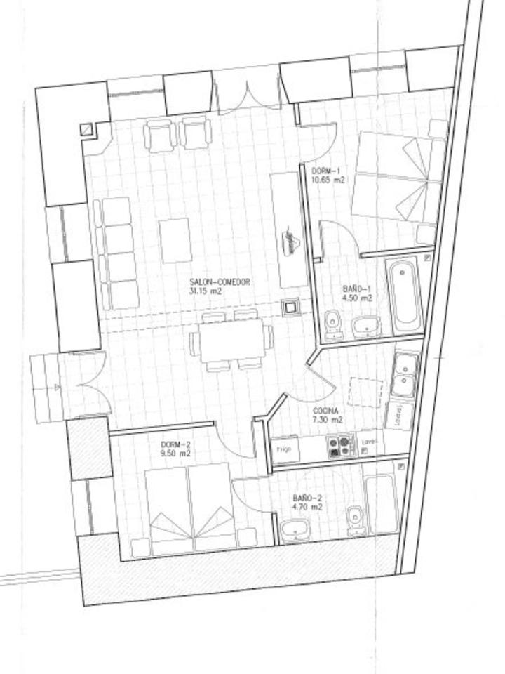
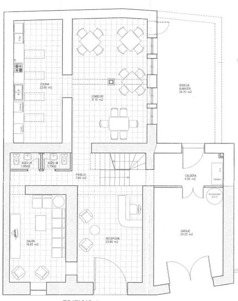
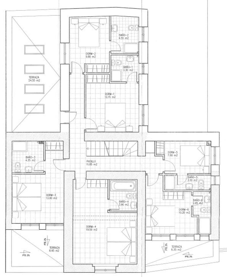
The tower has been adapted for twenty-first century life with great skill and sensitivity, revelling in its unique character and tactile natural materials, while injecting a dose of contemporary comfort and style. Inside, there are five double en-suite bedrooms (two with private veranda), two suites, a welcoming living room, further reception room, 30-cover dining room with wood-burning stove and semi-commercial kitchen, garage, wine cellar, rustic bar enjoying direct garden access and patio area perfect for evening drinks.

A detached house, accessed from the pleasant garden that unites the estate, offers two double en-suite bedrooms, kitchen, dining room with fireplace and mezzanine and a gallery. Close by we find three barns, currently used for storage, and a handy gazebo.

This unique country home was operated as a guesthouse, with all necessary licences for running a thriving rural business. If you’re tempted by a new career in beautiful surroundings, this is an unmissable opportunity.

Do you want to know more about this property?